Thursday, February 18, 2016

The Key Plans for the Future, Part 2!


Hello, my lovely readers!

Based on your requests in the comments from the last post, here are a few more pictures of the Horizons blueprints I found on eBay recently:

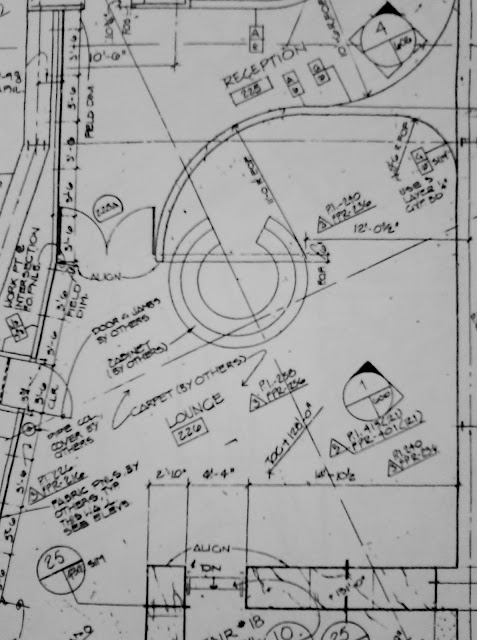
Luke Anthony requested some shots of the VIP Lounge area used by the GE brass:

Here are a few of the...*ahem*...."facilities"  for the lounge area we should all recognize...
                        Luke also asked for some close up shots of the Omnimax screens, which I've included below:



Here is the loading area. You'll notice the moving walk, which is later referred to as the moving "belt" in the ride script.
"From all of us, thanks for exploring Horizons. Now, please take small children by the hand and watch your step onto the moving belt. The belt and your vehicle are traveling at equal speed." 

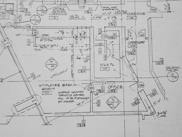
            I also decided to include some pictures of the backstage areas, particularly the break room.
False skylights. I love that they included those.


SpotWeld asked if I could look for air handling, power hookups and mounting hardware for the scent distribution system, but nothing was clearly labeled enough for me to deceipher it. I'm going to try to brush up on some drafting and construction lingo so I can try and read these better. I'm sure it's in there somewhere, but it's probably in some kind of coding I am unable to read. I'll let you know if I find any more about it!

On a side note, I've been getting a lot of questions lately about how people can help out the archives, which I am eternally grateful for! As of right now, I am in need of a few supplies, so I started a GoFundMe account and 100% of the proceeds raised will go towards supplies for the archives. If you're interested in helping, I've included the link below.


As always, thank you all so much for stopping by! Don't forget to follow me on Twitter @LBATArchives, and like our Facebook page, Looking Back At Tomorrow.

You can also send all your questions, comments, concerns, suggestions for future blog posts, and general greetings to LookingBackAtTomorrowArchive@gmail.com

Thanks again!



Monday, February 15, 2016

The Key Plans for the Future


During a recent scavenger hunt on eBay, attempting to gather the latest and greatest additions to the archives that I could find, I seredipitiously stumbled upon this lot of TWENTY TWO individual copies of blueprints for Horizons, and I could not wait to get my hands on them!

 One of my absolute favorite things about these blueprints is the WED Enterprises Imagineering logo in the top left box. WED Enterprises Imagineering would ultimately change its name to Walt Disney Imagineering in January of 1986. The mailing address is still correct and still currently the headquarters of Walt Disney Imagineering! 

All of the blueprints have a construction bid date of 10/23/81, with Bill Norton as Project Designer and Doug Stapp as Project Engineer. Various changes and alterations to the construction of the pavilion are dated even after the opening of the ride, as late as 12/12/83. 

The various San Francisco based architects, planners, structural engineers, mechanical engineers, and electrical engineers that worked on Horizons are all listed above

Through further investigation, I discovered that Wallace, Floyd, Ellenzweig, Moore, Inc. was also the Design Architect for the EPCOT Center monorail station, the entrance pavilion, and Spaceship Earth!  Simpson, Gumpertz, & Hager, Inc. was the Prime Consultant on these projects as well.

Though Wallace, Floyd, Ellenzweig, Moore, Inc. is currently listed as forfeited, both Simpson, Gumpertz, & Heger, and Syska & Hennessy are still currently in business in San Francisco!

*Angels singing*



 

 

 As you can see from these drawings, a large portion of the show building was located in the rear of the building, where it was completely invisible to guests. With 137,000 square feet of show space, Horizons was far larger than the space where Mission:Space currently sits.  

Ironically enough, one of the reasons given that the pavilion was torn down and replaced was because the building was apparently "too small" to fit the new attraction. *Sigh*

All twenty two blueprints laid out on my dining room floor in all of their glory.

















If you would like to see a close up version of any particular blueprint, please let me know! As always, thanks for stopping by!

Friday, February 12, 2016

To my wonderful readers, THANK YOU!

I just wanted to thank you all for the tremendous response I've received for my last post about Horizons merchandise! From that one post, Looking Back at Tomorrow now has readers in Canada, Mexico, United Kingdom, Germany, Australia, Singapore, Hong Kong, Slovakia, and Spain! 

In related news, a recent look inside the Looking Back at Tomorrow mailbag revealed this very sweet note from a reader: 

Dear Michelle,

I wanted to just write you a short note complimenting you on your Looking Back at Tomorrow" website.  Horizons was a really special part of Epcot when I was growing up, so it's always nice to see people like yourself keeping its memory alive.

In fact, I did a ranking of the Disney World rides I've experienced on my blog that you might appreciate (and Horizons, of course, is #1.)

All the best to you,
Alex Voltaire
 
Thanks so much, Alex! 

Alex's blog, The Northumbrian Countdown, is as Alex himself puts it, an attempt to chronicle my thoughts and rankings on a number of sundry topics: The Beatles, politics, the 1960s and 1970s, overall nostalgia, Elton John, Disney World, Star Trek, and so on." 
 
I know that many of our readers are interested in a lot of the same topics, so I encourage you all to check it out! You can also take comfort in knowing that he has a lot of nice things to say about Horizons!
 
Thank you again to all of my readers. It really means a lot to hear from all of you! 


Wednesday, February 10, 2016

The Stuff Dreams Were Made Of...


A few weeks back, I was in Epcot at Sunshine Seasons, deciding what I wanted to have for lunch. As I walk up to the counter to order my usual Turkey and Monterey Jack on Ciabatta with Chipotle Mayonnaise and Potato Salad, I am greeted by a very sweet cast member named Sarah, who quickly notices and compliments my Horizons sweatshirt enthusiastically.

It's always a shock to me when someone actually recognizes what it is, so I thank her and she continues to gush about Horizons, as we chat while she's plating my sandwich. It absolutely made my day, not only because someone recognized Horizons, but that a current Epcot cast member was so knowledgeable and enthusiastic about Epcot's heritage. I told her she was the perfect cast member to be working in Epcot, and I could not wait to share this story as part of the archives. So, thank you again, Sarah from Averill Park, NY! You are truly the model Epcot cast member!

My interaction with Sarah was actually not the first interaction I've had based on my Horizons inspired apparel. I had a similar interaction with a young man that was working at the After Market Shop, the gift shop located at the exit of Test Track. Whether it's my Horizons pin, my custom MagicBand decal, a Horizons t-shirt or a Horizons sweatshirt, I always get stopped by the nice folks out there like you, who have an appreciation for not only Horizons itself, but the availability of Horizons inspired merchandise.

For that reason, I'd like to take this opportunity to shamelessly plug a few of the companies I've found that make it possible to show off your love for Horizons. (I'm not affiliated with these companies in any way. I just think they're neat!)

Let’s start with RetroDisneyWorld.com! This website has been a major influence in my decision to start the archives, and I just wanted to thank the gentlemen who created it for constantly teaching me, and hundreds of other fans who thought they knew everything there was to know, something new and interesting every single month!

In addition to their monthly podcast, RetroDisneyWorld also has their own ImageWorks Film Restoration Lab. Their goal is to “bring back the moving image history of the grandest and most memorable times for Walt Disney World...1971 to 1989.” If you have any home movies from the parks that you would like restored or digitized, I highly recommend checking them out!


The blue t-shirt that you see above was part of their “Mesa Verde University” collection that they started a few months back. Though the shirt itself is currently out of print, they have an entire store on RedBubble, filled with “Mesa Verde University” merchandise. Though the entire design is an absolute masterpiece, the part I find particularly hilarious is the school’s motto: “Nobis Septum Annos Liberos Mittite, Agricolas Remittemus”…which loosely translates to “Send us your children for seven years, we will return farmers.”


Speaking of RedBubble, that’s also where I found the sweatshirt I’m wearing above. Though I no longer have this exact hoodie (It’s a very long and tragic story that involves leaving it behind at Coronado Springs, Lost and Found mailing it to the wrong address, and me never being able to retrieve it…sigh…) I was able to replace it with a similar one, and the only real difference is a thinner material and the Horizons symbol is now blue instead of white. If it’s a chilly day in the parks, you can be certain that I’ll be wearing it, so if you happen to see me, don’t be afraid to say hello!


Another cool thing I’ve discovered is the ability to make custom MagicBand decals on MagicYourBand.com! This is the first company I have seen where you can actually upload the picture you want to use, and they will print it exactly how you design it. When I discovered I could make the decal with the Horizons symbol that’s pictured above, I was so excited, and when it arrived, it was perfect. I believe it was only about 6 or 7 dollars, and I wear it every time I go into the parks. It feels nice to be able to take a little bit of Horizons with me everywhere I go, even if I’m not wearing my t-shirt or my sweatshirt that day.


One last website I'd like to plug is Zazzle. They were the first website I discovered years and years ago that actually produced Horizons inspired merchandise, and it was life changing to see how many people actually appreciated it enough to do that!

I hope this inspires you to show off your Horizons pride the next time you are at your local mall, or at the grocery store or especially walking around Walt Disney World. You never know who else might be a Horizons fan, and it can spark some pretty interesting conversations. At the very least, you will be happy knowing that you are keeping the memory of Horizons alive!